Pentalocale panoramico
Dettagli
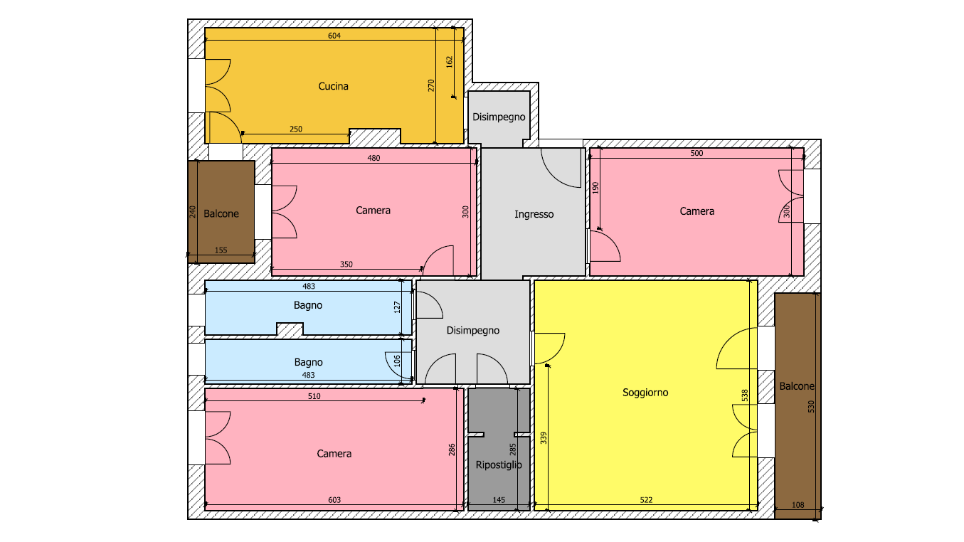
In via Rodolfo Morandi, nella zona di Mirafiori, in una via molto tranquilla e non di passaggio proponiamo un appartamento in uno stabile appena ristrutturato con il superbonus 110%, e quindi dotato di cappotto termico. L’alloggio si trova al quinto piano con ascensore, con capienza di 6 persone, e si presenta con un ingresso, sul quale si affaccia la cucina abitabile e una camera da letto. Il disimpegno adiacente permette l’accesso al salone doppio – dotato di balcone esposto ad ovest e con vista sulle montagne – alle altre due camere da letto, ai doppi servizi e al ripostiglio. L’immobile ha subito una ristrutturazione: sono infatti stati completamente rifatti i bagni (uno dotato di vasca e l’altro di doccia), tutti gli impianti della cucina e il portoncino blindato; infine sono stati installati gli infissi in pvc con doppio vetro in tutta la casa. La vista è molto aperta in entrambe le esposizioni dell’appartamento, che ne risulta, anche grazie al piano alto, molto luminoso durante tutta la giornata.
- ID: 3583
- Visite: 395
